1st Floor, 55 Charlemont Place
Dublin 2
D02 F985
€62 per ft²
- Space Available10,872 ft² / 1,010 m² (approx. 101 desks)

Rita Carney
Senior Director - Office Agency
Agent details

Tara O'Reilly
Graduate Surveyor - Office Agency
Agent details
- Summary
- Facilities & services
- Energy rating
- Location
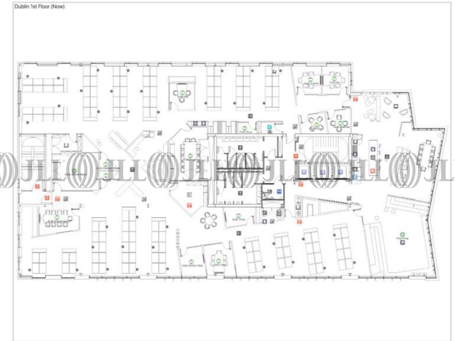
- Floor plan
- Brochures
- Agents
- Enquire
Summary
High quality 'plug & play' specification office in a leafy Dublin 2 location
- Fully fitted 'plug & play' accommodation
- 3 year sub-lease from 1st July 2026 - potential for longer term direct lease
- Stunning views overlooking Grand Canal
- Impressive building reception with coffee dock and outdoor seating area
- Building designed to LEED Gold and BER A3 standards
Description
55 Charlemont is a Grade A office building overlooking the Grand Canal in Dublin 2. It has been designed to a high standard throughout achieving LEED Gold and BER A3 ratings. The 1st floor is available for sub-let. The accommodation is fully fitted in a predominantly open plan layout with associated meeting rooms, offices, break out space and kitchen area.
Specification
The premises is finished to CAT B standard to include:
- 4 pipe fan coil air-conditioning
- Raised access floors
- Exposed ceiling tiles
- LED lighting
- Fully fitted space including 138 sit-stand workstations
Terms
Available by way of sub-lease from 1st July 2026 until 30 June 2029 or potential for new longer term lease from the landlord.
Accommodation
Energy rating

Location
Agents

Rita Carney
Senior Director - Office Agency
Agent details

Tara O'Reilly
Graduate Surveyor - Office Agency
Agent details




















