10 Pembroke Place
Ballsbridge
Dublin 4, D04 V1W6
€58 per ft²
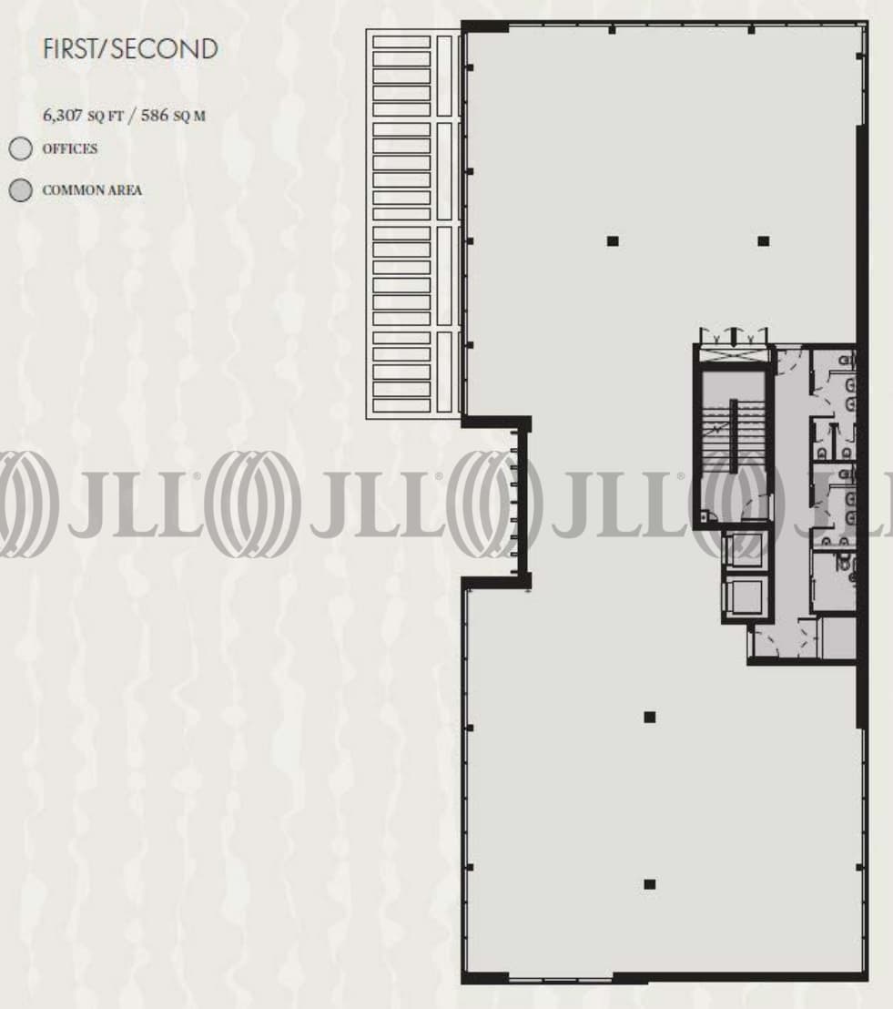
- Space Available6,369 ft² / 592 m² (approx. 59 desks)

Caroline Nugent
Graduate Surveyor - Office Agency
Agent details

Rita Carney
Senior Director - Office Agency
Agent details

Tara O'Reilly
Graduate Surveyor - Office Agency
Agent details
- Summary
- Facilities & services
- Energy rating
- Location
- Floor plans
- Brochures
- Agents
- Enquire
Summary
Office to let in Dublin 4
- Grade A office building in the heart of Ballsbridge
- Raised access floors, suspended ceilings, 4-pipe fan coil air-conditioning
- BER B1
Description
Grade A office accommodation available immediately in Ballsbridge.
The building provides 23,732 sq. ft of office accommodation over 5 Floors, with the Part Ground and 1st Floor available to lease.
Other occupiers in the building include the Institute of Dermatologists, BUPA and Rubicon.
Specification
Completed to CAT A condition, including:
- Raised access floors
- Suspended ceilings
- 4 pipe fan coil air-conditioning
- LED lighting
Terms
Available on a new lease agreement.
Building Energy Rating
BER B1
BER No. 800696437
EPI 214.93 kWh/m²/yr
Accommodation
Energy rating

Location
Agents

Caroline Nugent
Graduate Surveyor - Office Agency
Agent details

Rita Carney
Senior Director - Office Agency
Agent details

Tara O'Reilly
Graduate Surveyor - Office Agency
Agent details













